电话:
0379-67067067 0379-63939358
联系我们
English
首页
关于我们
公司动态
产品中心
联系我们
ENGLISH
中文
English
公司动态
您现在的位置:
首页
>
公司动态
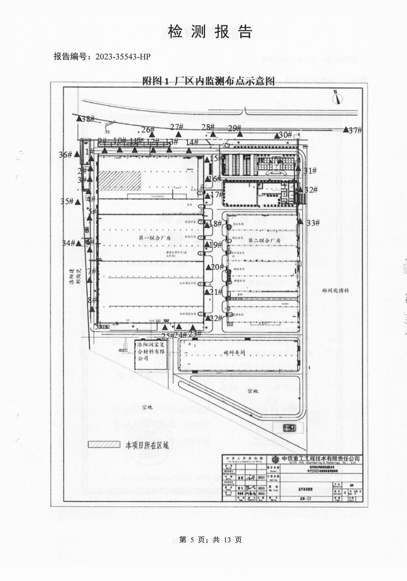
球赛押注app辐射检测报告
时间:2024-01-06
点击量:4255
上一篇:喜迎2024,洛阳润宝研磨大联欢!
下一篇:球赛押注app辐射监测方案
热门文章
球赛押注app-2025年度报告
2026-03-17
球赛押注app环境辐射监测(γ辐射空气吸收剂量率和空气中氡浓度)
2026-03-17
球赛押注app环境辐射监测(样品分析)
2026-03-17
环境辐射监测报告
2025-03-03
环保辐射年度报告
2025-03-03
电话
信息
地图
刷新